
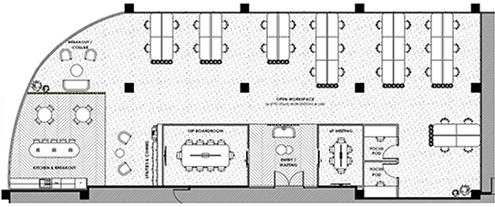
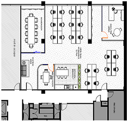
87 Marsden offers flexible leasing options with opportunities ranging from boutique suites to multi-floor tenancies. Individual floor plates of up to 550 square metres are set around a central core to maximise natural light and space efficiencies. Fitted and refurbished options are available.